fr

Votre recherche

Vendu
Areches (73270)

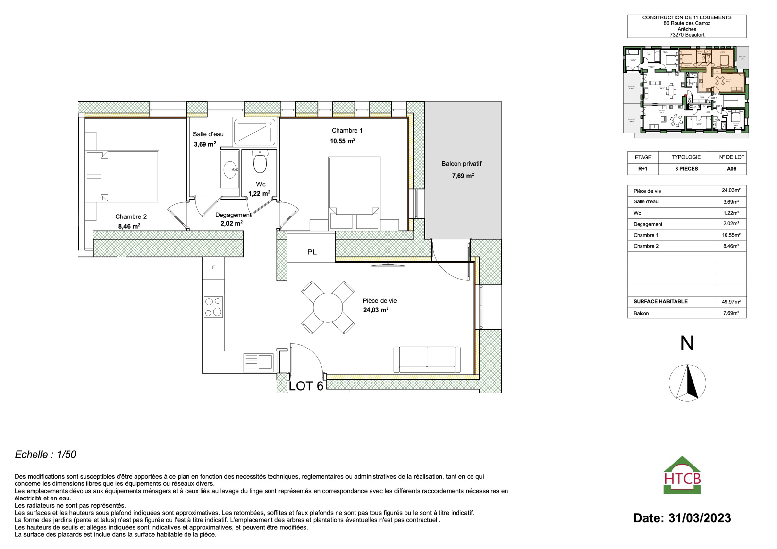
3 pièces - 49,97 m²

Appartement - au Pied des Pistes – Centre Village

Ref : DVAP10000038
Découvrir le bien

Appartement - au Pied des Pistes – Centre Village

Description :

Situé au cœur du village et au pied du télésiège du Grand-Mont, cet appartement occupe le premier étage d'une charmante copropriété issue de la transformation d'un ancien hôtel.


Bénéficiant d'une exposition Est avec un large balcon terrasse, il offre un cadre de vie lumineux et agréable.


Caractéristiques principales :

  • Localisation : Centre village, à proximité de toutes les commodités.
  • Surface : 49.97 m² Loi Carrez
  • Étage : Premier étage.
  • Expositions : Est
  • Pièce de vie : Spacieuse, avec cuisine ouverte.
  • Balcon terrasse : Environ 7 m²
  • Chambres : Deux chambres
  • Salle d'eau : Avec douche.
  • WC : WC séparé.
  • Inclus dans la vente : Mobilier de salle de bain et meubles de cuisine
  • Travaux en cours : Les travaux de rénovation, réalisés avec des matériaux de qualité, seront bientôt terminés
  • Annexes : Un casier à ski, un emplacement vélo, trois places de stationnement, et une cave complètent l'appartement.
  • Chauffage : Chauffage électrique individuel.
  • Assurance : Assurance dommages-ouvrage sur les travaux réalisés.
  • Diagnostics : Les diagnostics obligatoires ont été réalisés
  • DPE : Lettre D
  • Prix de vente : 285 000 € Frais agence à charge du vendeur
TRAD_ZEPHYR_Caracteristique TRAD_ZEPHYR_Valeurs
Code postal 73270
Nombre de chambre(s) 2
Nombre de pièces 3
Etage 1
Ascenseur NON
Vue Pied de piste, centre village
TRAD_ZEPHYR_Caracteristique TRAD_ZEPHYR_Valeurs
Nb de salle d'eau 1
Mode de chauffage Electrique
Type de chauffage Radiateur
Format de chauffage Individuel
Balcon NON
Terrasse OUI
Murs mitoyens 2
Cave NON
Nombre de parking 1
Exposition Est
Année de construction 1978
TRAD_ZEPHYR_Caracteristique TRAD_ZEPHYR_Valeurs
Les honoraires d'agence seront intégralement à la charge du vendeur  
DPE GES
Contacter pour ce bien
L'agence
Téléphone 06 84 98 51 59
Adresse
90 chemin de l'argentine - 73270 Beaufort

* Champ obligatoire

Les informations recueillies sur ce formulaire sont enregistrées dans un fichier informatisé par La Boite Immo agissant comme Sous-traitant du traitement pour la gestion de la clientèle/prospects de l'Agence / du Réseau qui reste Responsable du Traitement de vos Données personnelles. La base légale du traitement repose sur l'intérêt légitime de l'Agence / du Réseau. Elles sont conservées jusqu'à demande de suppression et sont destinées à l'Agence / au Réseau. Conformément à la loi « informatique et libertés », vous disposez des droits d’accès, de rectification, d’effacement, d’opposition, de limitation et de portabilité de vos données. Vous pouvez retirer votre consentement à tout moment en contactant directement l’Agence / Le Réseau. Consultez le site https://cnil.fr/fr pour plus d’informations sur vos droits. Si vous estimez, après avoir contacté l'Agence / le Réseau, que vos droits « Informatique et Libertés » ne sont pas respectés, vous pouvez adresser une réclamation à la CNIL. Nous vous informons de l’existence de la liste d'opposition au démarchage téléphonique « Bloctel », sur laquelle vous pouvez vous inscrire ici : https://www.bloctel.gouv.fr Dans le cadre de la protection des Données personnelles, nous vous invitons à ne pas inscrire de Données sensibles dans le champ de saisie libre.
Ce site est protégé par reCAPTCHA, les Politiques de Confidentialité et les Conditions d'Utilisation de Google s'appliquent.

Découvrir nos outils